Un piso de menos de 15 metros

Quien ha dicho que la elegencia está reñida con los metros.

Este mini apartamento que no llega a 15 metros,  no solo tiene todo lo que se necesita para vivir, sino que además destila estilo.

Enciende los altavoces y disfruta.

piso pequeño


Con tan pocos metros, la imaginación lo es todo. Soluciones a medida hacen que este apartamento pueda tener todo en el espacio de una habitación,

La cocina escondida debajo del pequeño comedor, la cama pegada al comedor, el armario debajo de la cama….todo vale para que no falte ningún detalle.

Los colores claros, imprescindibles en tan pocos metros, junto con las formas depuradas del moviliario ayudan a dar sensacion de amplitud.

Los detalles morados en el cuadro, cojines y flores le dan calidez al espacio.

piso pequeño


piso pequeño


piso pequeño


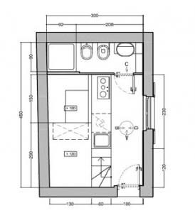
plano piso pequeño


via

.

Fuente: este post proviene de The Beautiful Project, donde puedes consultar el contenido original.
¿Vulnera este post tus derechos? Pincha aquí.
Creado:
¿Qué te ha parecido esta idea?

Esta idea proviene de:

Y estas son sus últimas ideas publicadas:

Comprar un sofá es una de las decisiones más importantes que se toman al momento de decorar un hogar. Ya sea para una sala de estar, una sala de televisión o una habitación, el sofá es una pieza clave ...

Etiquetas: Hogar

Recomendamos

Relacionado

Hogar

Hay casas especiales, pero desde luego, la que hoy traigo es de las más curiosas que he visto. La casa ha sido creada por Maximus Extrem Living Solutions para una familia de Utah. Enciende los altavoces y disfruta. Fachada La casa completa incluye una cocina, dos habitaciones, un salón comedor y un baño. A pesar de ser una casa de pocos metros, está perfectamente adaptada para una familia de tres  ...